Polskie Koleje Państwowe S.A. rozpoczynają realizację nowego projektu w ramach Programu Operacyjnego Infrastruktura i Środowisko. W 2012 roku kompleksowo wyremontowano budynek oraz otoczenie dworca kolejowego na stacji Brzesko – Okocim. Teraz nadszedł czas na gruntowną modernizację kolejnych. Nowe dworce w Sterkowcu i Biadolinach Szlacheckich będą nowoczesne, komfortowe i dostosowane do potrzeb osób o ograniczonej sprawności poruszania się.
To znakomita wiadomość dla mieszkańców, którzy już wkrótce będą mogli skorzystać z budynków funkcjonalnych, bezpiecznych i bardzo komfortowych. To także doskonała wizytówka Powiatu Brzeskiego, który z pewnością zyska na atrakcyjności turystycznej.
Projekt zakłada wyburzenie dotychczasowych dworców i postawienie w ich miejscu nowych, mniejszych obiektów. To kompaktowe, parterowe budynki, zbudowane według standardowego wzoru, dopasowanego wielkością, materiałami i wykończeniem do lokalnych uwarunkowań. Wśród ekologicznych rozwiązań, które pojawią się na poszczególnych dworcach można wskazać m.in. na ogniwa fotowoltaiczne, pompy ciepła, energooszczędne oświetlenie LED czy odzysk wody deszczowej. Obiekty zostaną również wyposażone w BMS, czyli system inteligentnego zarządzania budynkiem. Inwestor zapewni także maksymalny poziom bezpieczeństwa pasażerom – zmodernizowane dworce będą objęte calodobowym monitoringiem.
Zmodernizowany dworzec w Brzesku również zyska dodatkowe udogodnienia. Miasto otrzymało blisko milion złotych unijnej dotacji na budowę parkingu typu park and ride. Do końca tego roku ma powstać przestronny plac na blisko 160 miejsc parkingowych oraz strefa dla rowerzystów. Parking ma być oświetlony i monitorowany. Podobną, choć nieco mniejszą inwestycję Gmina przeprowadzi w sąsiedztwie dworca w Sterkowcu.


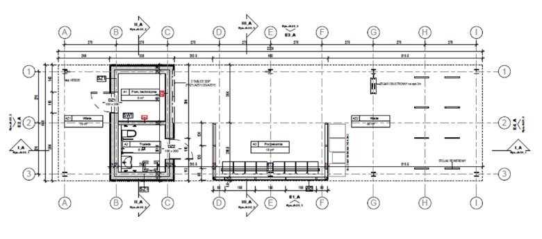
Projekt dworca kolejowego w Biadolinach Szlacheckich – dworzec modułowy typu A
Jasna, przestronna i ogrzewana poczeklania. Ogolnodostępna toaleta. Na zewnątrz, pod wiatą dworcową dodatkowe miejsca siedzące, stojaki rowerowe oraz miejsca na biletomaty i maszyny sprzedające przekąski i napoje.


Projekt dworca kolejowego w Sterkowcu – dworzec modułowy typu B
Na przeciwko komfortowej, ogrzewanej poczekalni wraz z toaletą, niewielki lokal komercyjny. Na zewnątrz, pod wiatą dworcową dodatkowe miejsca siedzące, stojaki rowerowe oraz miejsca na biletomaty i maszyny sprzedające przekąski i napoje.












